견적리스트 배너
198㎡ 사무실 리모델링
견적번호 30393251219
견적분류 실시간 견적
공사분류 사무/오피스
인테리어 수준 보통
진행현황 견적진행
견적분류 일반견적
의뢰자명 곽○○
연락처 010-***-****
시공지 주소 서울 광진구  ******
시공지 면적 60 실면적(PY) / 198 ㎡
시공예상일 2025-01-01 날짜미정
희망예산 업체협의 업체협의
파일첨부
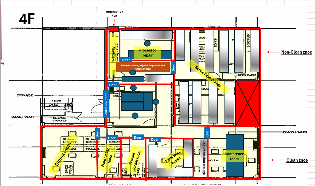
요청사항 현재 운영중인 사무실 공간 배치 및 레이아웃 변경에 대해 문의드립니다.
26년 1~2월 중에 예정하고 있습니다.
사진 보내드린것처럼 예정하고 있긴한데 현장 방문하게되면 좀 더 자세한 내용 전달드릴 수 있도록 하겠습니다.
인테리어 마감공사라기 보다는 가벽이나 회의실 위치 변경등 공간 분리, 배치에 대한 공사입니다.
연락부탁드립니다.
번호 견적번호 견적분류 제목 지역 진행현황
21912 30393251219 일반견적 사무/오피스 198㎡ 사무실 리모델링

서울 광진구

견적진행
21911 30392251219 일반견적 체육/건강 330㎡ 스크린골프장 리모델링

경기 광주시

견적진행
21910 30391251219 일반견적 카페/식당 30㎡ 프렌차이즈 고로케전문점 인테리어

경기 화성시

견적진행
21909 30390251219 일반견적 사무/오피스 165㎡ 사무실 칸막이철거 공사

서울 강서구

견적진행
21908 30389251219 일반견적 주거공간 86㎡ 아파트 인테리어

서울 노원구

견적진행
21907 30388251219 일반견적 주거공간 50㎡ 빌라 인테리어

경기 부천시

견적진행
21906 30387251219 일반견적 주거공간 43㎡ 오피스텔 리모델링

경기 성남시

견적진행
21905 30386251219 일반견적 카페/식당 89㎡ 회전초밥집&모던바 인테리어

경기 안산시

견적마감
21904 30384251219 일반견적 카페/식당 56㎡ 공간대여 인테리어

인천 연수구

견적진행
21903 30383251218 일반견적 사무/오피스 406㎡ 사무실 인테리어

경기 의왕시

견적마감